Due to the health concerns created by Coronavirus we are offering personal 1-1 online video walkthough tours where possible.




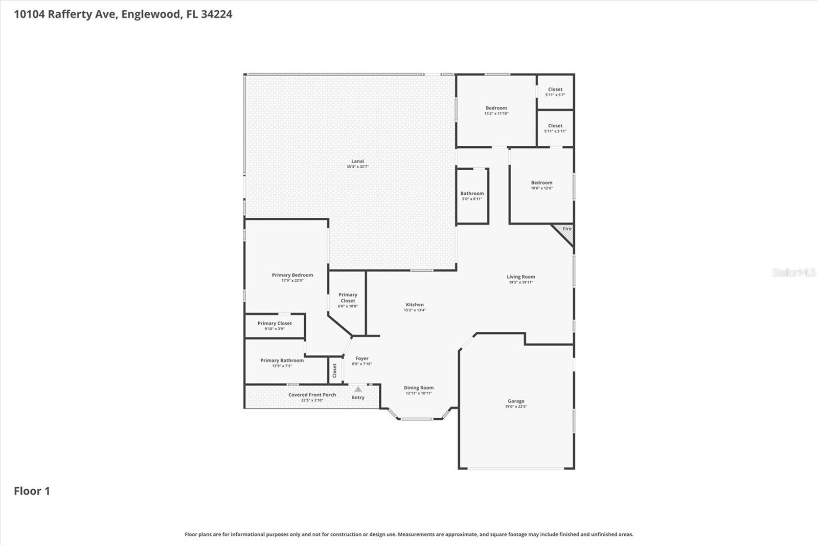
Welcome to a home where every detail has been handled for you. Situated on nearly half an acre, this beautifully modernized 3-bedroom, 2-bath, 2-car garage residence offers the perfect blend of coastal security and contemporary style. From the moment you step inside, you’ll notice the thoughtful upgrades and clean, modern design that make this home truly move-in ready. Bright, open living spaces flow with ease, creating a layout that feels both inviting and functional. Every corner has been refreshed with care, giving the home a crisp, polished feel while still keeping it warm and comfortable. At the heart of the home is the chef’s kitchen, designed to impress and built to perform. It features all-new stainless steel appliances, custom soft-close wood cabinetry, and pull-out drawers for easy storage. A large bar-style center makes cooking and entertaining simple and fun. Granite countertops and a subway-style tile backsplash add a timeless touch. Throughout the home, you’ll find new designer-engineered hardwood flooring, cottage-style window shutters, updated fans and lighting, and all-new raised panel interior doors. Each bedroom offers updated ceiling fixtures and oversized walk-in closets, providing both comfort and space. The family room invites you to relax by the stone-textured, corner wood-burning fireplace, while the extra area offers flexibility for a small dry-bar or creative space. This home also stands out for its strong upgrades focused on protection and efficiency. A durable metal roof, PGT insulated hurricane impact windows and doors, and a brand-new AC system—including new ductwork—bring peace of mind. The property has been fully re-plumbed and features upgraded electrical capacity, making it ready for modern living. Step outside to enjoy a massive screened enclosure and a spacious yard ready for your ideas. With an outdoor shower and pool bath already in place, adding a full-sized pool or hot tub is simple. The grounds include fruit trees, a picnic area, a large storage shed, and added privacy. There’s also extra parking for a boat or RV. Conveniently located close to schools, shopping, restaurants, and just a short drive to Gulf beaches, this home offers both comfort and location. A survey is available for the buyer—schedule your private tour today!
| 3 hours ago | Listing updated with changes from the MLS® | |
| 7 hours ago | Listing first seen on site |